指挥车_方舱指挥车_重汽豪沃指挥车主要用于在处理突发事件中应急通信指挥;专用装置为:全自动静中通对星天线、显示器、云台摄像机、升降杆、卫星通信分系统、视频会商分系统、通信网络分系统等;侧防护为裙边结构,材质Q235A,离地高度:370mm;后防护材质Q235A,连接方式:焊接连接,后防护截面尺寸:(mm)95×120,离地高度:470mm;ABS系统控制器生产企业/型号为威伯科(上海)管理有限公司/4460046300.该整车长/轴距对应关系为(mm):10630/5800,10430/5600.该车仅采用发动机型号:MC07.31-60.随底盘选装驾驶室.指挥车_方舱指挥车_重汽豪沃指挥
车整车主要技术参数如下

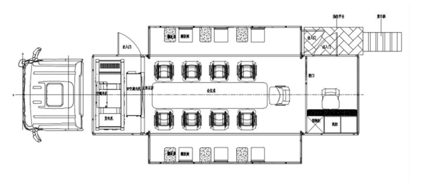
指挥车图纸参考:

更多指挥车方舱指挥车应急指挥车重汽指挥车消防指挥车防汛指挥车救险车抢险车排水车排涝车移动泵车工程抢险车电源车发电车欢迎拨打电话喻部长18771356665咨询指挥车厂家